Lystejendom 10,5 ha m. dejlig beliggenhed
Vinderslevholmvej 58, 8620 Kjellerup
Hermed udbydes den unikke ejendom ”Mejlkærgård”, beliggende ved Hinge mellem Silkeborg og Kjellerup. Ejendommen er sydvendt med vid udsigt over Hingesø.
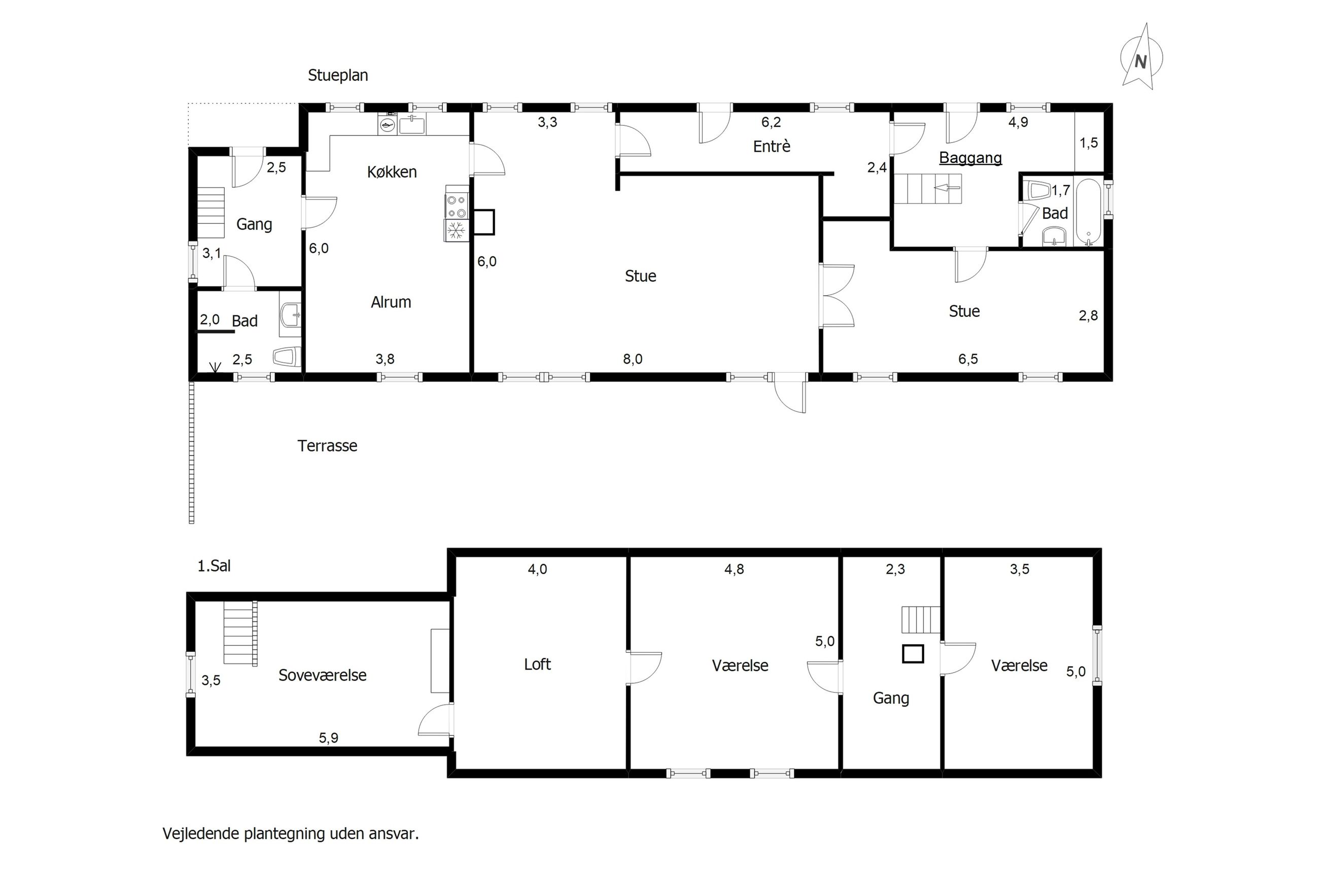
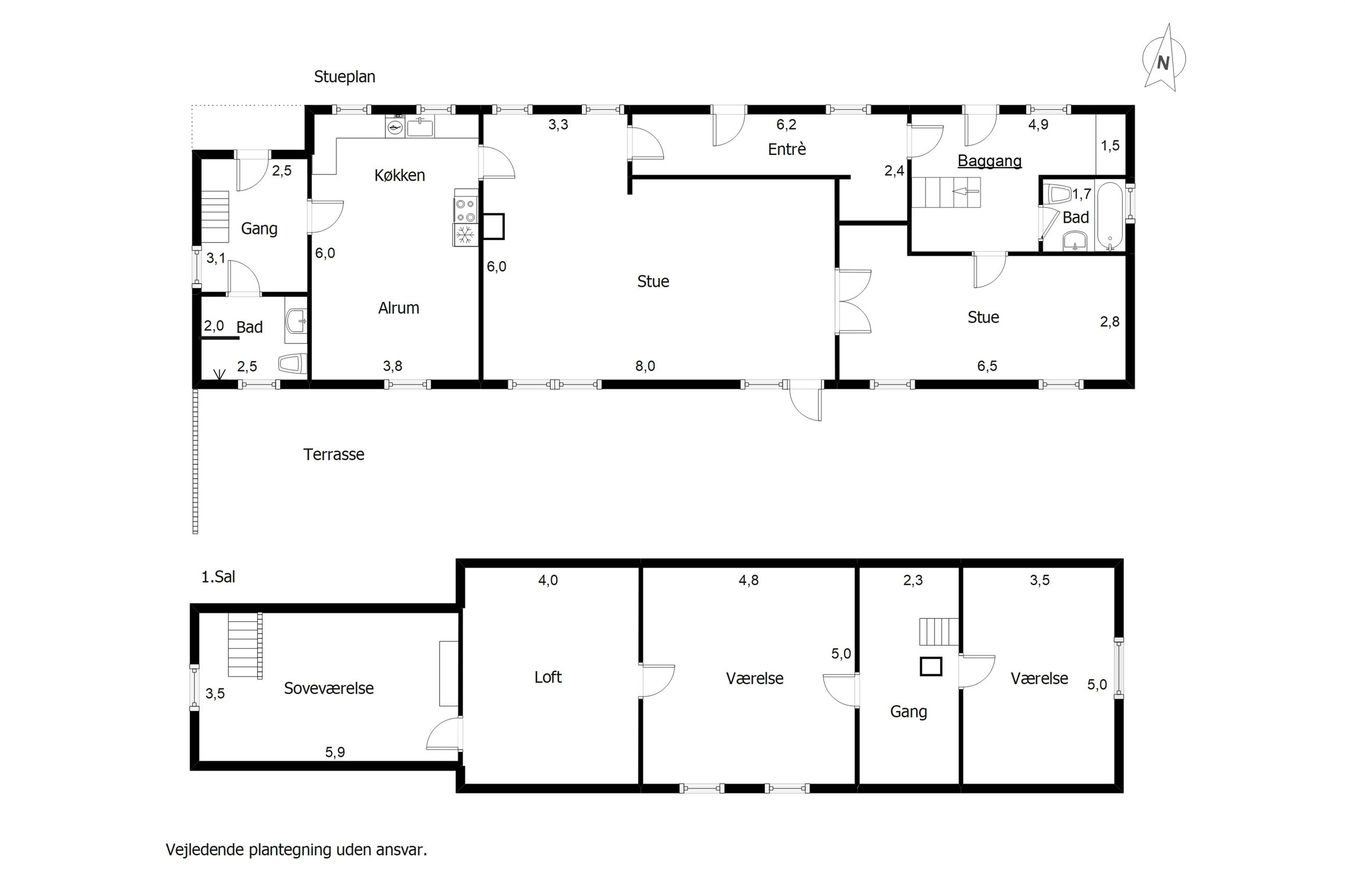
Ejendommens bygninger består af et ældre stuehus med 140 m2 beboelsesareal. Boligen og udhusbygningerne danner et fint firlænget anlæg med et hyggeligt gårdrum.
Fra stuehuset og terrassen er der en fantastisk udsigt over søen, hvor naboen Vinderslevholms hovedbygning spejler sig i vandfladen.
Udbygningerne består af ældre stald- og ladelænger opført i røde mursten med tage af grå eternit.
Terrænet er lettere kuperet og ejendommens jordtilliggende består af varierede skovbevoksninger af hovedsageligt nåletræ, eng- og græsjord mod søen, samt en stor have med frugthave og et utal af forskellige træer og buske.
Hinge sø er ikke udmatrikuleret, hvilket betyder at nærmeste bredejer har råderetten over søarealet nærmest egen grund.
Denne ejendom byder på rige muligheder for at nyde et utal af naturoplevelser både på egen grund og i nærområdet, med jagt, lystfiskeri og måske badning ved egen søbred.
Ellers kan badning ske ved offentligt søbad, som ligger 100 meter fra ejendommen.
Der vil naturligvis også være mulighed for det lille husdyrhold med heste, kreaturer eller får på gårdens græsjord.
Trods den ugenerte beliggenhed er der kun 8 minutters kørsel til motorvejsnettet.
Hvad enten man vil renovere de nuværende bygninger eller bygge en helt ny ejendom på dette sted, vil det være svært at finde en bedre beliggenhed.
Alt i alt en ejendom der skal opleves og mærkes.
| Sagsnummer | 12047 |
| Ejendomstype | Lystejendom |
| Kontantpris | 4.950.000 kr. |
| Grundareal | 10.55 ha |
| Byggeår | 1887 |
| Boligareal | 140 m2 |
| Energimærke | D |
