























Attraktiv lystejendom 54 ha
Rodelundvej 30, 8680 Ry
Vi har hermed fornøjelsen af at udbyde Glarbogård og dermed en unik mulighed for at erhverve en gennemført lystejendom i naturskønne omgivelser tæt ved Himmelbjerget. Glarbogård er beliggende midt i Søhøjlandet i det rolige og naturskønne terræn imellem Ry og Rodelund. Ejendommen byder på en enestående balance mellem komfort og landlig idyllisk atmosfære.
Ejendommen ligger i det eftertragtede område tæt ved Himmelbjerget, hvor den åbne natur er lige uden for døren. Det er den perfekte base for dem, der ønsker at være tæt på både den smukke natur og byen, samtidig med at være omgivet af frodige marker og skovområder, som inviterer til gåture eller måske en tur på hesteryg.
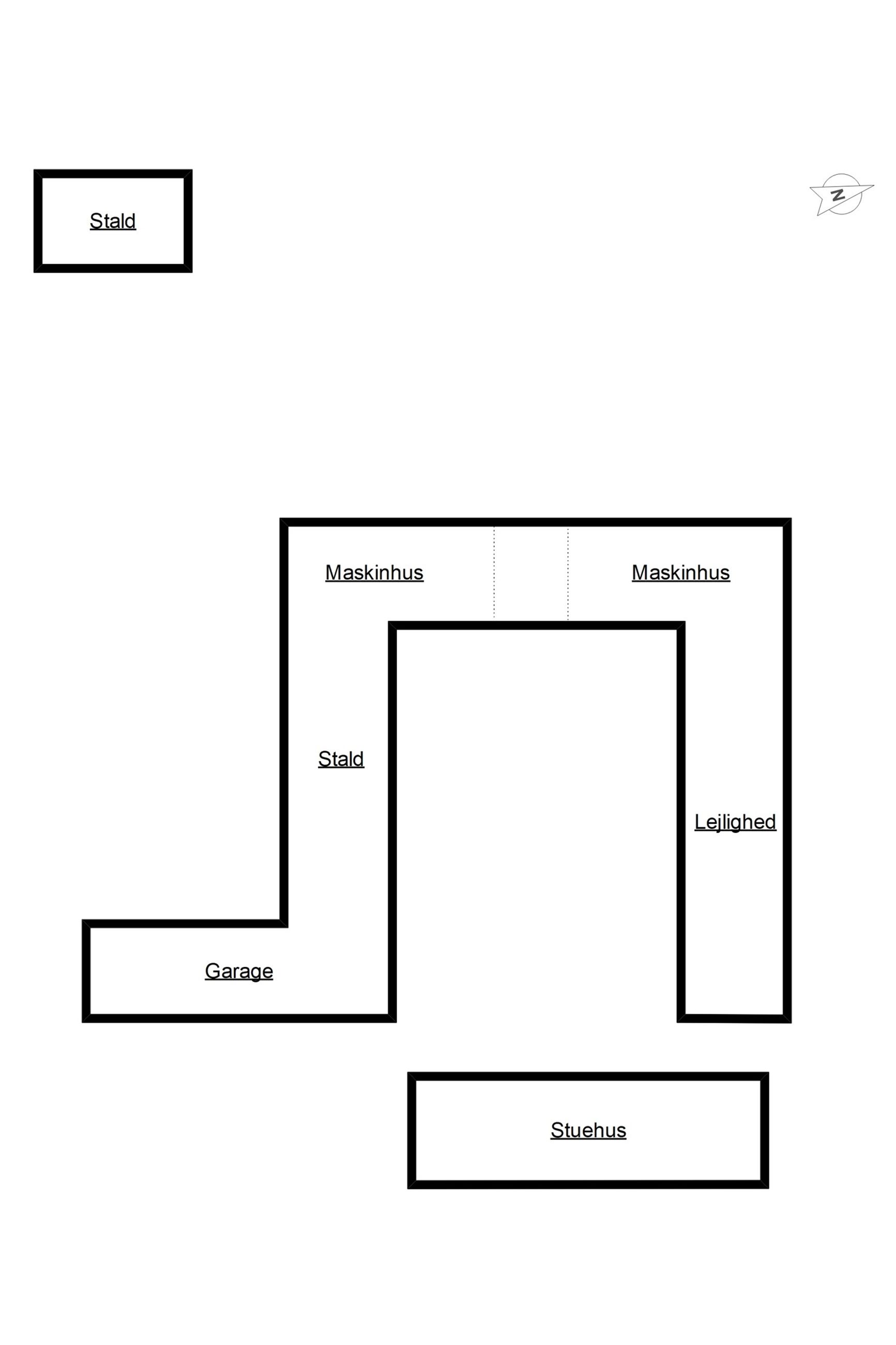
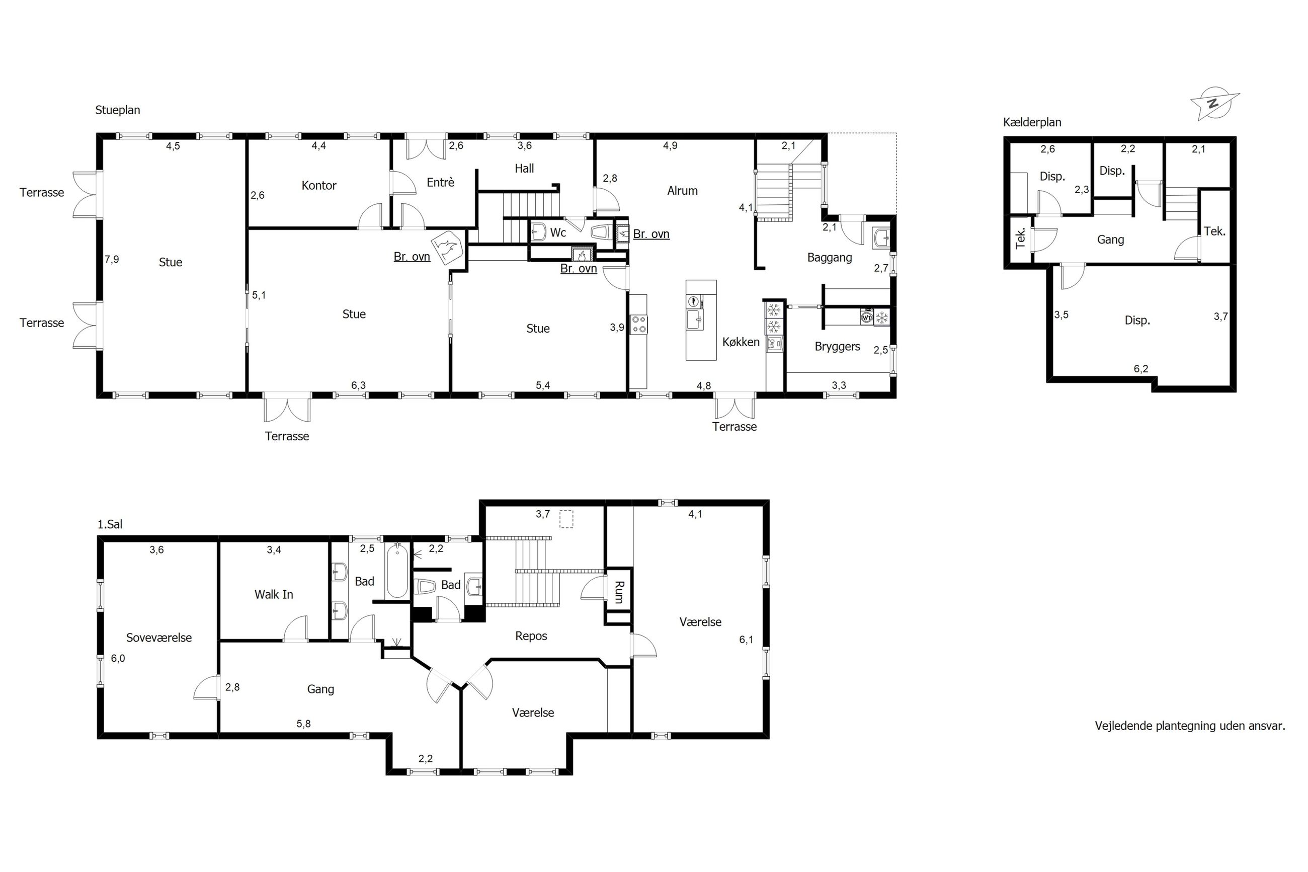
Det traditionelle hvidmalede stuehus med rødt tegltag er rummeligt og byder på hele 350 m2 boligareal med god plads til familieliv og gæster. Huset, der løbende er renoveret med gode materialer og med stor respekt for oprindelige detaljer, emmer af en egen charme. I den ene sidelænge er der indrettet en lejlighed på 150 m2, mens de øvrige driftsbygninger anvendes til garager, maskinhus mv.
Jordtilliggendet på Glarbogård er i dag hovedsageligt anvendt til juletræsproduktion, både som egen produktion og bortforpagtet.
På jorderne er der både læhegn, skovhoveder og ikke mindst den dejlige sø. Dermed byder Glarbogård på rigtigt gode muligheder for en varieret jagt på både klovbærende vildt og fugle.
Glarbogård henvender sig til købere, der ønsker sig en gennemført landejendom med en dejlig bolig, i et attraktivt område med alle de muligheder, livet på landet tilbyder. Her skal blot nævnes husdyrhold, friluftsliv, jagt osv.
Ejendommen vil eventuelt kunne erhverves med et mindre jordareal. Kontakt venligst Landbrugsmæglerne.
Sagsnummer | 12698 |
Ejendomstype | Lystejendom |
Kontantpris | 19.500.000 kr. |
Grundareal | 54.32 ha |
Byggeår | 1918 |
Boligareal | 162 m2 |
Energimærke | D |