107 ha Planteavl
Houlbjergvej 16A, 8870 Langå
107 ha planteavlsejendom med et meget velarronderet jordtilliggende, hvor de 96 ha ligger i et sammenhængende stykke ved bygningerne og de resterende 11 ha ligger i et stykke ca. 350 m fra bygningerne.
Jorden er virkelig god og dyrkningssikker JB 5-6.
Driftsbygningerne omfatter 1.843 m2, hvoraf de 1.074 m2 er maskinhuse med stålspærskonstruktion og det resterende areal er stalde og lade med korntørreri og plansiloer til ca. 3.500 hkg korn mv.
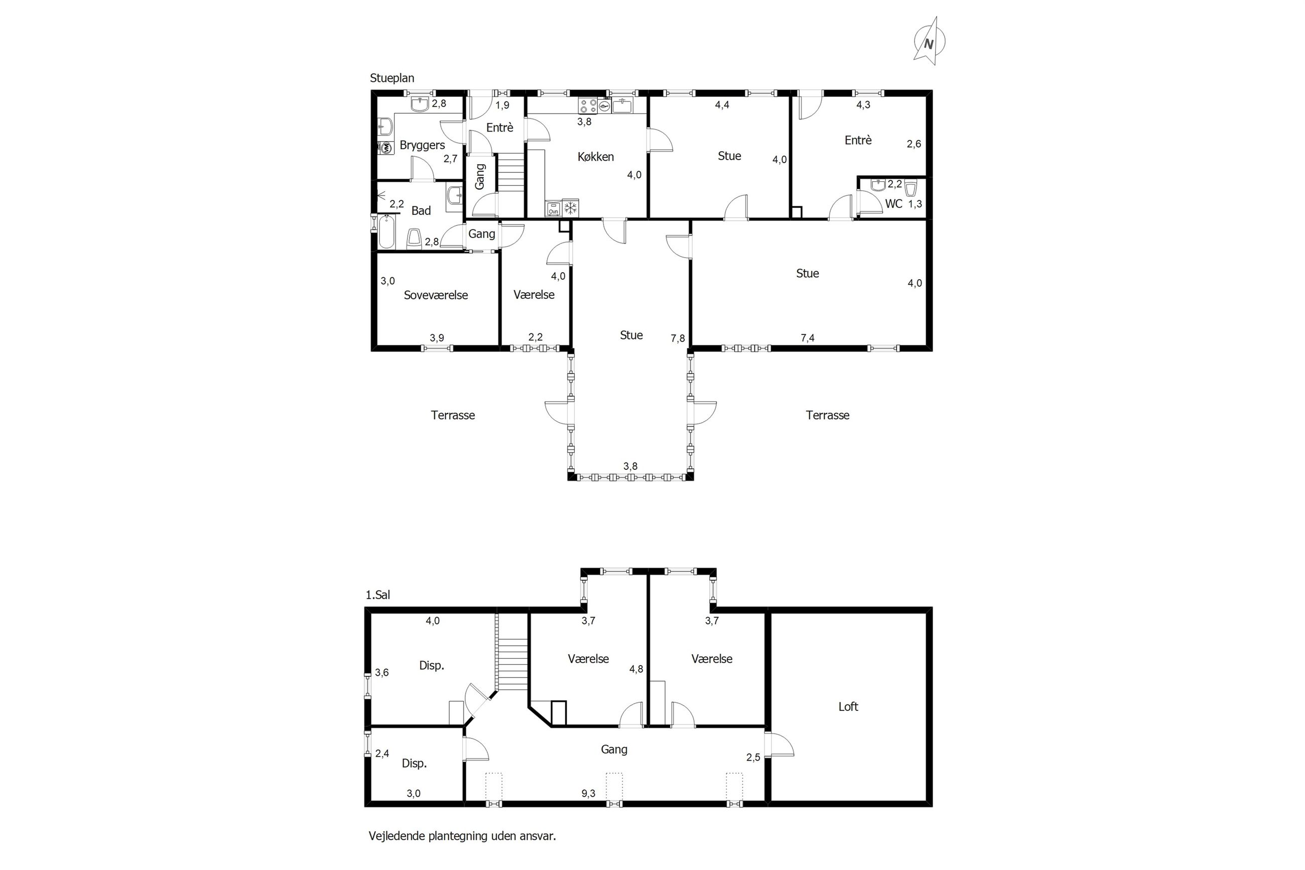
Præsentabelt rødstens stuehus med 262 m2 boligareal. Fra boligen er der mod syd udsigt over egne marker og det omkringliggende landskab.
Jorden er bortforpagtet til efter høst 2026.
Beliggenhed: Ejendommen er beliggende som den sidste ejendom når man kører nord ud af Houlbjerg. Der er ca. 3 km til Laurbjerg, ca. 7 km til Langå og ca. 10 km til Hammel.
| Sagsnummer | 12861 |
| Ejendomstype | Planteavl |
| Kontantpris | 29.000.000 kr. |
| Grundareal | 107.16 ha |
| Byggeår | 1900 |
| Boligareal | 262 m2 |
| Energimærke |
Jens Vestergaard
Ejendomsmægler, valuar og merkonom i økonomistyring
