

























Skovejendom m. bygninger 25 ha
Holmsgårdvej 4, 7321 Gadbjerg
Tykhøjet er en dejlig skov- og lystejendom på 25,2 ha med en rolig, ugeneret beliggenhed og en dejlig velholdt bolig på 187 m2 etageareal, alt i gode materialer. Ejendommen er registreret som fredskov og bolig. Der er dermed ikke krav om beboelse.
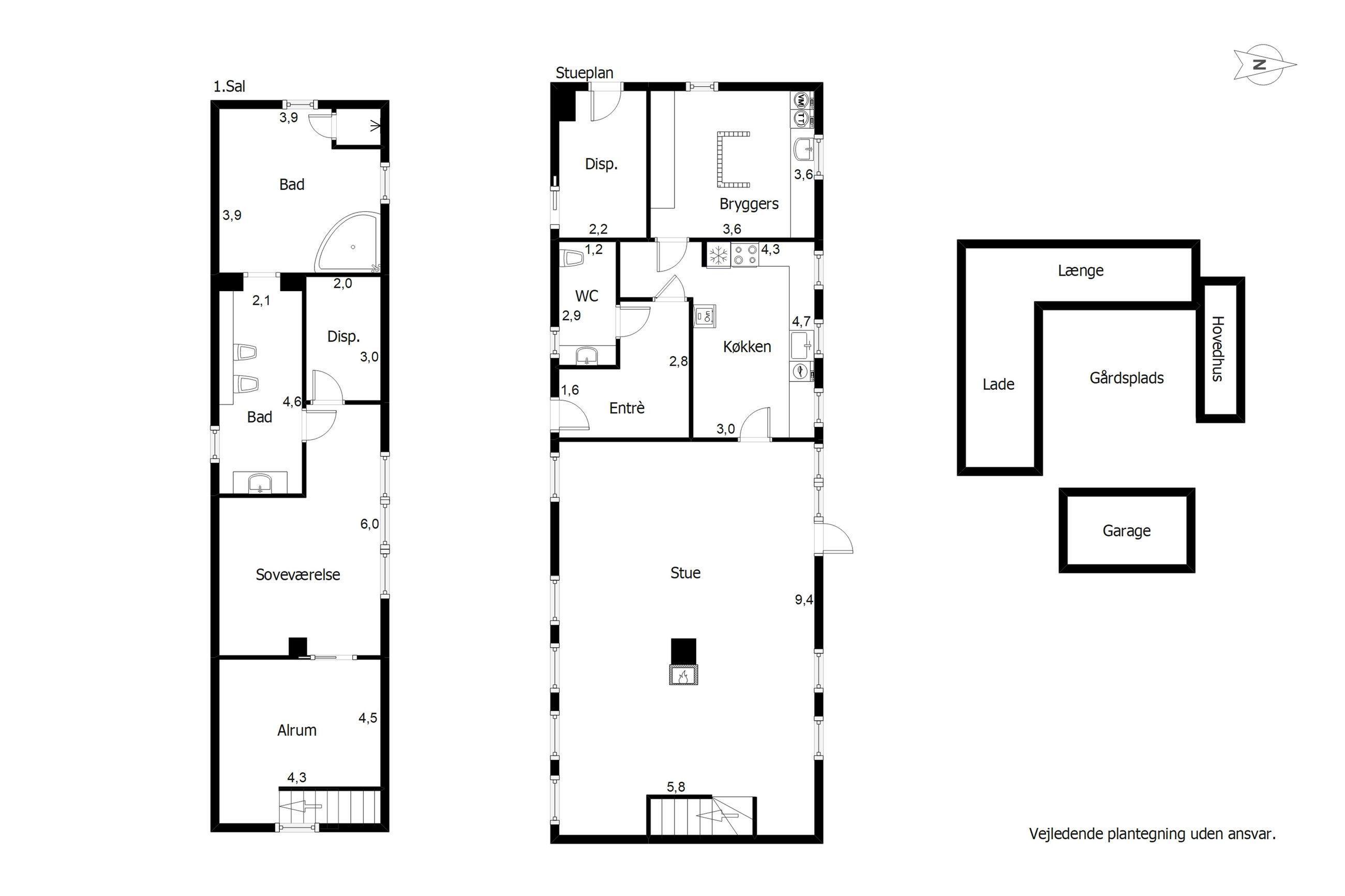
Det velholdte, stråtækkede stuehus er løbende opdateret og fremstår i dag som en både spændende og praktisk bolig med mange gode detaljer. Ud over stuehuset findes her en længe, indrettet med værelser mv. samt en stald/lade med hestebokse.
Ejendommens velarronderede jordtilliggende består af ca. 15 ha skov, ca. 4 ha skovrejsning og ca. 5 ha græs/engjord.
Terrænet er meget kuperet, med slugter omkranset af ege- og bøgeskov. I en af disse slugter springer kildevældet, der året rundt giver det fineste rene vand. Ejendommens sydlige skel følger bækken i det smukke engdrag, hvor der indenfor de senere år udført et vådområdeprojekt til gavn for områdets flora og fauna.
De nuværende ejere har igennem de senere år lagt et stort arbejde i at fremhæve ejendommens mange naturmæssige facetter. Her kan blot nævnes fritlægning af søerne, og udsigter fra de højeste partier på ejendommen samt udtyndinger i skoven, der fremhæver det markante og smukke terræn.
Jagten har ikke været udlejet og står dermed til en ny ejers disposition fra overtagelsen. Jagten har været drevet meget skånsomt, og er da også særdeles god med både områdets store bestande af kron- og dåvildt og ikke mindst råvildt, skovsnepper og harer.
Tykhøjet er registreret som fredskovsejendom og beboelse, hvorved der ikke er beboelsespligt i Landbrugslovens forstand. Ejendommen og boligen vil derfor kunne anvendes som fritidsbolig.
En ideel ejendom med natur, jagt og mulighed for husdyrhold.
Ejendommen er beliggende ved Tykhøjet Krat med 12 km til både Billund, Jelling og Give samt 21 km til Vejle.
Sagsnummer | 12551 |
Ejendomstype | Lystejendom |
Kontantpris | 5.800.000 kr. |
Grundareal | 25.14 ha |
Byggeår | 1790 |
Boligareal | 187 m2 |
Energimærke | E |