Landejendom med kontor- og erhvervsfaciliteter
Faurskovvej 3, 8370 Hadsten
Kombineret landbrugs- og erhvervsejendom naturskønt beliggende i landzone i udkanten af Hadsten bys erhvervskvarter.
Bygningerne rummer gode kontor/møde faciliteter med toilet, køkken mv. samt isoleret lager faciliteter, er indrettet i de oprindelige længer, som er opført i røde sten/bindingsværk og med nyere stråtag, på tilsammen 626 m2.
Desuden isoleret værkstedshal på 653 m2 opført delvis i røde sten, delvis i stålplader, hvor der er indlagt fjernvarme, udsugning, trykluft således, at det fungerer som et fuldt funktionsdygtigt værksted. Desuden halvtag med lagerfaciliteter bag hallen.
Alle bygninger er velholdte og i god stand.
Til ejendommen hører 17,1 ha, heraf er 10,8 ha. agerjord, pt. bortforpagtet. De resterende arealer er natur, hegn, vej og bygningsparcel. Ejendommens vestlige skel udgøres af Lilleåen og til ejendommens arealer knytter sig skøn natur med mulighed for fiskeri og jagt. En bro over Lilleåen giver charmerende adgang fra parkhaven til naturarealerne.
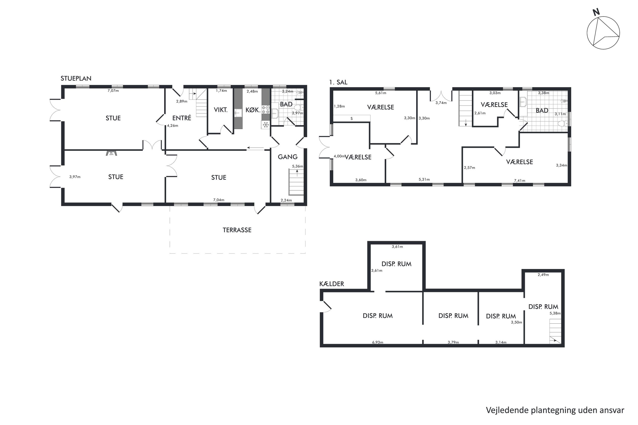
Der er en god og tidssvarende bolig på ca. 290 m2 med udnyttet 1. sal til ejendommen. Boligen er gennemrenoveret i 1978/79 og siden løbende vedligeholdt, senest med badeværelse i 2021.
| Sagsnummer | 12382 |
| Ejendomstype | Lystejendom |
| Kontantpris | - Kr. |
| Grundareal | 17.13 ha |
| Byggeår | 1968 |
| Boligareal | 290 m2 |
| Energimærke | E |
