25,6 ha planteavlsejendom med naturskøn beliggenhed nord for Vejle.
Bavnbjergvej 8, 7100 Vejle
Jorden fordeler sig med 21,2 ha agerjord og 3,4 ha
bevoksninger, natur og sø mv. Det varierede terræn med
levende hegn, bevoksninger sø og vandløb giver gode
muligheder for naturoplevelser eller jagt på almindeligt
forekommende vildt.
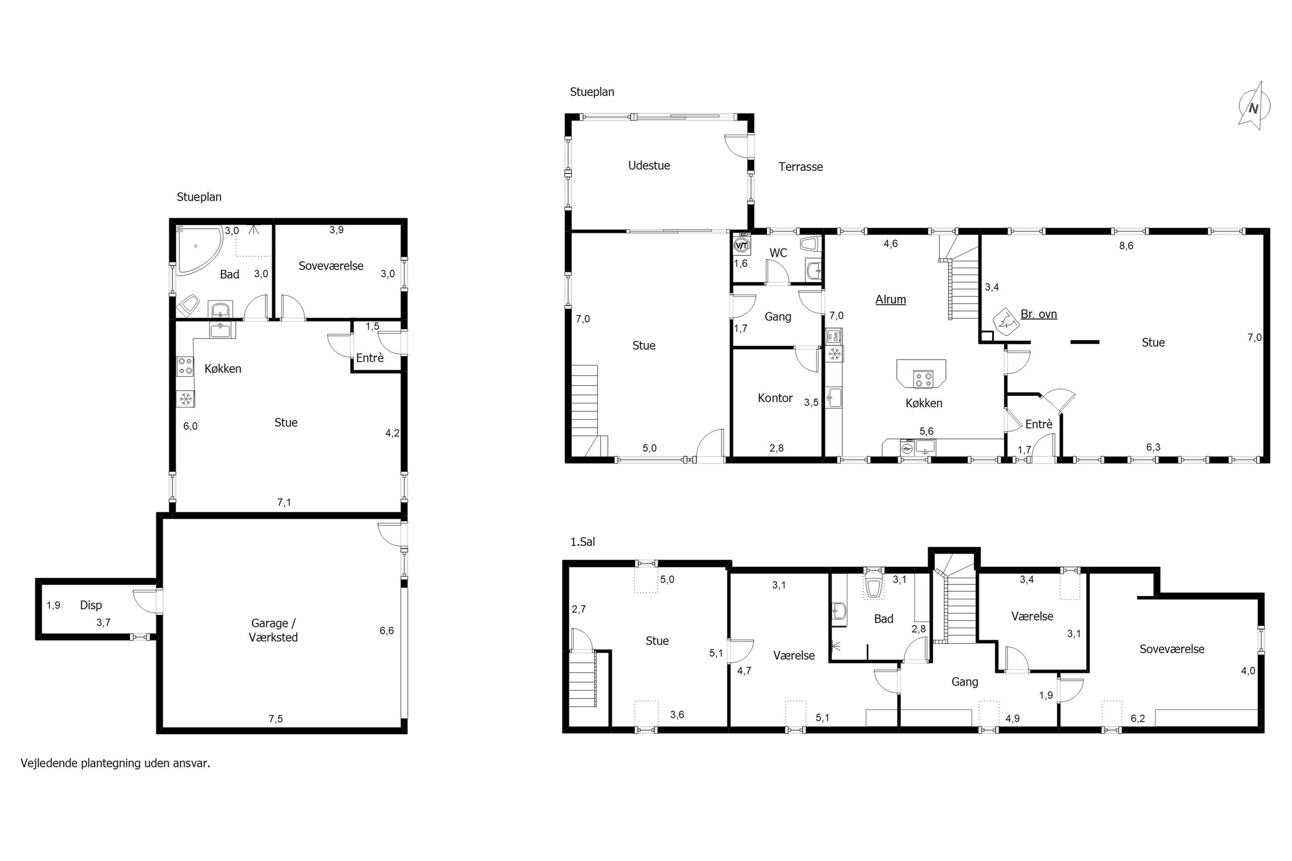
Attraktiv bolig med 268 m2 boligareal som løbende er
renoveret og fremstår som en god og tidssvarende bolig.
I udbygning er der yderligere en god lejlighed på 80 m2
.
Udbygninger med et samlet areal på 946 m2 med mange
anvendelsesmuligheder. Bygningerne indeholder
lade/maskinhus og stalde som er ryddet for inventar.
Beliggenhed: Ejendommen er beliggende ved Grejs ca. 8
km nord for Vejle. Der er kort afstand til motorvejstilkørsel
til både E45 og Midtjyske Motorvej.
Ejendommen hører til Grejsdal Skole og i Grejsdalen er der
også idrætsfaciliteter mv.
Kan eventuelt erhverves med mindre jordareal.
| Sagsnummer | 12733 |
| Ejendomstype | Lystejendom |
| Kontantpris | 7.495.000 kr. |
| Grundareal | 25.60 ha |
| Byggeår | 1902 |
| Boligareal | 268 m2 |
| Energimærke | C |
Jens Vestergaard
Ejendomsmægler, valuar og merkonom i økonomistyring
