Naturskønt beliggende lystejendom
Ammelhedevej 12, 8960 Randers SØ
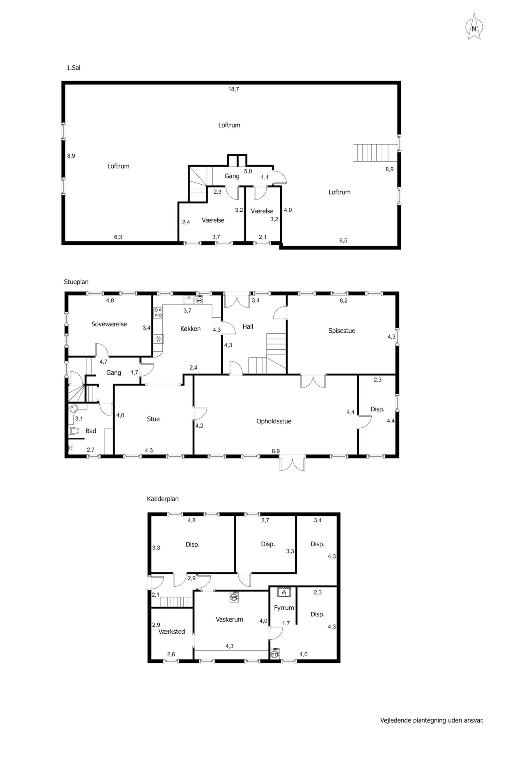
Naturskønt beliggende lystejendom med jordtilliggende på 3,66 ha beliggende samlet ved bygningerne. Udbygningerne omfatter ca. 2.000 m2, hvoraf de ca. 1.400 m2 er lade/maskinhuse med fritbærende konstruktion. Der er mulighed for mindre dyrehold og bygningerne er også velegnede til mange andre formål. Præsentabel bolig med bebygget areal på 180 m2 + 25 m2 udnyttet 1. sal + ca. 120 m2 kælder og 205 m2 boligareal, som er løbende renoveret og fremstår som en god og tidssvarende bolig. Der er mulighed for tilkøb af yderligere jord hvis det ønskes. |
Beliggenhed: Ejendommen er beliggende i Ammelhede ca. 10 km sydøst for Randers.
|
| Sagsnummer | 12739A |
| Ejendomstype | Lystejendom |
| Kontantpris | 3.295.000 kr. |
| Grundareal | 3.66 ha |
| Byggeår | 1924 |
| Boligareal | 205 m2 |
| Energimærke | E |
Hent salgsopstilling og dokumenter
Bestil fremvisning
Sælg din ejendom
Jens Vestergaard
Ejendomsmægler, valuar og merkonom i økonomistyring
