




























82 ha planteavlsejendom
Ammelhedevej 12, 8960 Randers SØ
82 ha planteavlsejendom med velarronderet jordareal, hvor
hovedparten af markerne ligger inden for en afstand på
under en km fra bygningerne.
Jorden fordeler sig med 71 ha omdriftsareal, 4,4 ha
permanent græs og 5,3 ha skov og natur.
Driftsbygningerne omfatter ca. 2.000 m2
, hvoraf de ca.
1.400 m2 er lade/maskinhuse med fritbærende
konstruktion.
Plantørreri til ca. 2.100 hkg korn og gyllebeholder til 820
m3
.
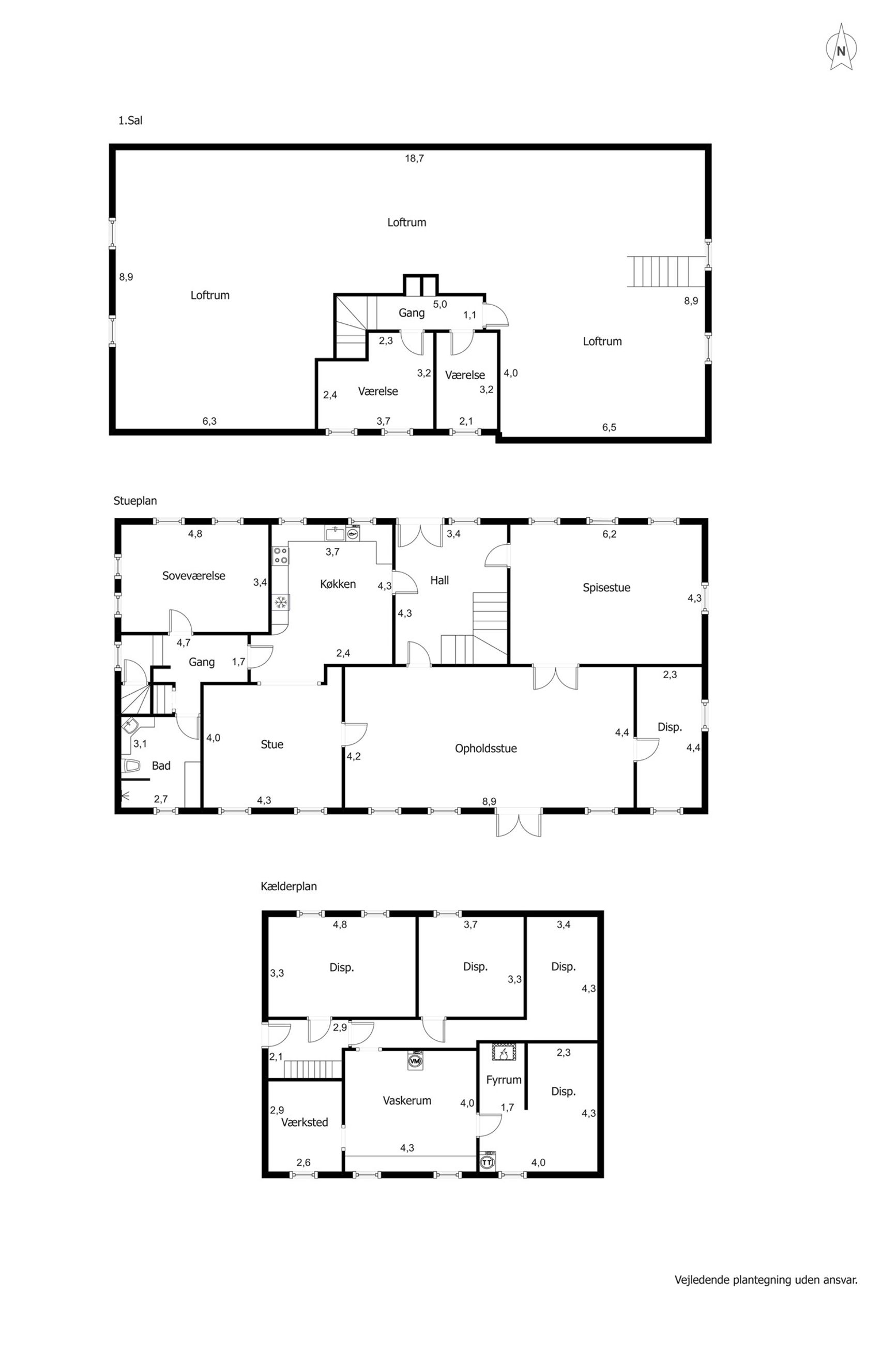
Præsentabel bolig med 205 m2 boligareal, som er løbende
renoveret og fremstår som en god og tidssvarende bolig.
Ejendommen udbydes til salg med overtagelse efter høst
2025.
Beliggenhed: Ejendommen er beliggende i Ammelhede
ca. 10 km sydøst for Randers.
Sagsnummer | 12739 |
Ejendomstype | Planteavl |
Kontantpris | 18.000.000 kr. |
Grundareal | 82.06 ha |
Byggeår | 1924 |
Boligareal | 205 m2 |
Energimærke | E |
Jens Vestergaard
Ejendomsmægler, valuar og merkonom i økonomistyring